Защита твердотопливного котла от перегрева
В твердотопливном котле горящее топливо, да и сам котел обладают довольно большой массой. Поэтому процесс тепловыделения в котле имеет большую инерцию. Горение топлива и нагрев воды в котле на твердом топливе нельзя мгновенно остановить, прекратив подачу топлива, как это делается в газовом котле.
Твердотопливные котлы, больше чем другие, склонны к перегреву теплоносителя – вскипанию воды, если пропал отбор тепла, например, при внезапном прекращении циркуляции воды в системе отопления, или тепла в котле выделяется больше, чем расходуется.
Кипение воды в котле ведет к росту температуры и давления в системе отопления со всеми серьезными последствиями – разрушению оборудования системы отопления, травматизму людей, повреждению имущества.
Современные закрытые системы отопления с твердотопливным котлом особенно склонны к перегреву, так как содержат сравнительно маленький объем теплоносителя.
В системах отопления обычно используются полимерные трубы, коллекторные узлы управления и распределения, различные краны, клапаны и другая арматура. Большинство элементов системы отопления очень чувствительны к перегреву теплоносителя и скачкам давления, вызванных кипением воды в системе.
Твердотопливный котел в системе отопления должен иметь защиту от перегрева теплоносителя.
Для защиты твердотопливного котла от перегрева в закрытой системе отопления, не имеющей соединения с атмосферой, необходимо выполнить два действия:
- Перекрыть подачу воздуха для горения в топку котла, чтобы как можно быстрее снизить интенсивность горения топлива.
- Обеспечить охлаждение теплоносителя на выходе из котла и не допустить повышения температуры воды до кипения. Охлаждение должно происходить до тех пор, пока выделение тепла не снизится до уровня, при котором кипение воды станет невозможным.
Рассмотрим, как выполнить защиту котла от перегрева, на примере схемы отопления, которая приведена ниже.
Схема подключения твердотопливного котла к закрытой системе отопления

Схема закрытой системы отопления с твердотопливным котлом.
1 — группа безопасности котла (предохранительный клапан, автоматический воздухоотводчик, манометр); 2 — бак с запасом воды для охлаждения теплоносителя при перегреве котла; 3 — поплавковый запорный клапан; 4 — термоклапан; 5 — группа подключения расширительного мембранного бака; 6 — узел циркуляции теплоносителя и защиты котла от низкотемпературной коррозии (с насосом и трехходовым клапаном); 7 — теплообменник защиты от перегрева.
Защита котла от перегрева работает следующим образом. При повышении температуры теплоносителя выше 95 градусов, термостат на котле закрывает заслонку подачи воздуха в камеру сгорания котла.
Термоклапан поз.4 открывает подачу холодной воды из бака поз.2 в теплообменник поз.7. Холодная вода, протекающая через теплообменник охлаждает теплоноситель на выходе из котла, не допуская кипения.
Запас воды в баке поз.2 необходим на случай отсутствия воды в водопроводе, например, при отключении электроэнергии. Часто в системе водоснабжения дома устанавливают общий накопительный бак. Тогда воду для охлаждения котла берут из этого бака.
Теплообменник для защиты котла от перегрева и охлаждения теплоносителя, поз.7 и термоклапан, поз.4 производители котлов обычно встраивают в корпус котла. Это стало стандартным оснащением котлов, предназначенных для закрытых систем отопления.
В системах отопления с твердотопливным котлом (за исключением систем с буферным баком ) нельзя устанавливать на отопительных приборах (радиаторах) термостатические клапаны и другие автоматические приборы, сокращающие отбор тепла. Автоматика может уменьшать потребления тепла в период интенсивного горения топлива в котле, а это может вызвать срабатывание защиты от перегрева.
Еще один способ защиты твердотопливного котла от перегрева описан в статье:
Читайте: Буферный бак — защита твердотопливного котла от перегрева .
Продолжение на следующей странице 2:
Принцип работы котла шахтного типа. Особенности конструкции
Среди отопительных агрегаты шахтного типа выделяются неприхотливостью к качеству топлива
Условие немаловажное, учитывая тот факт, что другие нагревательные приборы на твердом топливе капризнее в плане выбора топлива. Технологически допускается использование для топки котла поленья, влажность которых превышает 40-45%
Шахтный твердотопливный котел способен не только переварить сырые дрова, но и выдавать необходимое тепло в течение продолжительного времени. Между очередными загрузками топлива, как правило, проходит 12 часов и более. Есть модели, где эти показатели еще выше.
Свое название агрегат получил благодаря особенностям конструкции. Камера сгорания или топка в этом приборе имеет вид шахты. В агрегатах этого типа имеется две шахты: топливная и камера теплообмена. В топливной камере топливо располагается не в горизонтальном положении, а загружается, как в колодец, слой за слоем. Горение в таких аппаратах осуществляется снизу вверх, поэтому эти приборы еще называют агрегатами с нижним горением. Рассмотрим, как это выглядит на практике:
- перед самой закладкой на колосниках создается очаг;
- основная закладка укладывается уже на горящее топливо, послойно, сверху.
- постоянный поток воздушной массы не дает верхним слоям топлива разгореться;
- под собственным весом, дрова опускаются вниз, занимая место прогоревших поленьев;
- дрова, расположенные в верхней части успевают за время работы котла подсохнуть;
- в самом низу топливный шахты, при отсутствии кислорода происходит пиролиз, процесс образования древесного (пиролизного) газа.

Вторая — топочная камера или шахта теплообмена, представляет собой зону, где протекает основной процесс горения. В устье второй топки поступает пиролизный газ, который и является основным источником тепловой энергии.
Топочная шахта может иметь различное исполнение. Одни модели нагревательных приборов имеют шахту теплообмена с плоским теплообменником. Нередко в конструкции отопительного агрегата имеется водогрейный теплообменник или жаротрубное теплообменное устройство, установленные непосредственно в топочной шахте. Такой тип и расположение теплообменников является максимально эффективным. Для того, что бы получить реальное представляете о том, как устроен шахтный котел, достаточно посмотреть на рисунок — разрез устройства.

*В камеру сгорания для повышения интенсивности горения подается горячий вторичный воздух. Стенки устья камеры сгорания обкладываются шамотным кирпичом, благодаря которому достигается максимально высокая температура в топке. Шамотный кирпич не только способствует лучшему дожигу пиролизного газа, но и продлевает эксплуатационные характеристики котельного оборудования.
Выше уже было подмечено, что данный вид обогревательного котельного оборудования прекрасно справляется с топливом низкого качества. За счет принципа работы отопительной техники этого вида, дрова успевают достичь необходимых параметров влажности. Характерный для агрегатов классического типа конденсат, выделяемый в больших количествах влажными дровами, для шахтных приборов не помеха. За счет высокой производительности КПД таких агрегатов составляет 75-80%.
Конструктивные разновидности систем
Если не брать во внимание традиционные печи на твердом топливе, необходимо констатировать, что разновидностей видов твердотопливных устройств немного. Они подразделяются на агрегаты с ручной либо автоматической загрузкой топлива
Более интересны конструктивные отличия, которые учитывают разные принципы горения сырья. Например, котлы с ручной загрузкой (которая относительно твердого топлива – процесс довольно грязный и трудоемкий) постепенно выделили из своей среды два вида агрегатов, где загрузочный период стал значительно длиннее, а КПД агрегатов существенно возрос. Это – пиролизные котлы, а также котлы длительного горения. Принцип работы пиролизного котла состоит в том, что в его топочную камеру воздух подается с некоторым, некритичным для стабильности процесса горения, недостатком. В результате углерод, содержащийся в топливе, окисляется кислородом не до обычной двуокиси углерода СО2, а до окиси СО. Последняя является основным компонентом генераторного газа, который, несмотря на свою сравнительно низкую теплотворную способность (по сравнению с природным газом), при горении выделяет достаточно дополнительного тепла.
Агрегаты длительного горения, разработанные литовским инженером Э. Штрупайтисом и производимые торговой маркой Stropuva (Латвия), реализуют принципиально иную последовательность сгорания твердого топлива, чем обычные котлы. Работающие как на дровах, так и на угле, такие устройства отличаются еще большими интервалами между загрузкой, что очень удобно для эксплуатации.
Реализация принципа пиролиза

Как работает твердотопливный котел пиролизного типа? Ввиду токсичности СО (бытовым потребителям он знаком как угарный газ), устройства контроля за процессом горения разрабатываются особенно тщательно. Конструктивно такой агрегат состоит из:
- газифицирующей (или верхней) камеры;
- нижней топочной камеры;
- разделительных колосников;
- дымососа;
- корпуса с дверцей и контрольно-измерительной панели.
Запуск и работа твердотопливного котла пиролизного типа производятся в следующей последовательности.
- Дрова загружаются на колосниковую решетку.
- Производится поджиг дров, после чего дверца закрывается.
- Открывается заслонка дымососа, за счет разницы давлений в верхнюю камеру начинает поступать воздух.
- Выделяющийся при сгорании с недостатком воздуха генераторный газ – тяжелее воздуха, поэтому он опускается в нижнюю топку, где начинает гореть.
- Вследствие постоянной циркуляции воздуха процесс горения в нижней и верхней топках стабилизируется. Остается только контролировать устойчивость процесса верхнего дутья и количество топлива в верхней топке, а также периодически удалять золу из нижней топочной камеры.
Преимущества пиролизных котлов:
Останавливаясь на агрегатах пиролизного исполнения, следует отметить, что для их надежной эксплуатации пригодно сырье только с пониженной влажностью. В противном случае конденсат, откладываясь на внутренних поверхностях, не только нарушит стабильность процесса пиролиза, но и приведет к ускоренному износу металлических деталей оборудования. Наиболее современные конструкции пиролизных котлов все-таки снабжаются электронными, а не механическими регуляторами дутья, в связи с чем потребуется источник электроэнергии (хотя бы генератор).

Принцип и схема
Принципиально схема работы твердотопливного котла состоит из следующих узлов.
Последовательность функционирования котла длительного горения заключается в следующем.
- В нижнюю часть внутреннего цилиндра закладывается большой объем топлива (зависит от типоразмера оборудования).
- Переключателем устанавливается вид топлива (дрова или уголь/торф/пеллеты), после чего открывается заслонка подачи воздуха, и выполняется поджиг.
- По мере прогорания очередного слоя воронкообразный распределитель продвигается вниз, осуществляя при этом подачу воздуха, необходимого для устойчивого горения.
- Образующиеся дымовые газы удаляются через дымоход.
Преимущества котлов длительного горения:
Ориентируясь на применение твердотопливного котла длительного горения, следует учесть, что высотный габарит такого агрегата намного больше, чем у отопительного оборудования традиционного исполнения. Существенно выше также стоимость и требования как к самому агрегату, так и к топливу, на котором предполагается его использование.

Работа твердотопливного котла показана на видео. Это поможет уяснить некоторые нюансы установки и использования данного вида отопительного оборудования. Для легкости выбора можно рассмотреть сравнение эффективности некоторых современных видов твердотопливных котлов.
Достоинства и недостатки
Как было сказано выше, данная разновидность водонагревателей пользуется сегодня завидным спросом. Это можно объяснить следующими преимуществами:

- Устройство является полностью автономным, то есть его работа не зависит от функционирования какой-либо централизованной сети энергоснабжения.
- Топливо обходится дешевле газа, особенно если в этом качестве используются отходы деревообрабатывающей промышленности или сельского хозяйства.
- Для установки твердотопливного водогрейного котла не нужно оформлять разрешение и приглашать специалистов, как в случае с газовым котлом.
- По сравнению с обычными твердотопливными котлами водогрейные имеют небольшой вес, а предъявляемые к ним требования являются более мягкими.
- Такие приборы редко снабжаются автоматикой, поэтому отказы в работе у них почти никогда не случаются.
- Обслуживание котла состоит в очень простых действиях (удаление сажи и золы), так что для него не требуются какие-то специальные знания или высокая квалификация.
- Долговечность. Водогрейный котел может эксплуатироваться десятилетиями, что подтверждается предоставляемой производителем гарантией: обычно она составляет 15 лет.
- Стоимость является более чем доступной.
Вместе с тем, потенциальному пользователю следует заранее знать и о характерных недостатках:
- Работа водонагревателя не может быть автоматизирована. Пользователю самому приходится подкладывать топливо и следить за температурой воды в баке.
- Поскольку водогрейный котел стремятся делать предельно простым и дешевым, какие-либо меры по повышению его экономичности не предусматриваются. Соответственно, он является весьма прожорливым и запас топлива для него потребуется довольно большой.
Для того чтобы правильно подключить котел к отопительной системе, необходимо знать некоторые нюансы. Обвязка твердотопливного котла отопления – схема и дополнительные контуры.
Для чего используется инвертор для котлов отопления, расскажем тут.
Владельцы газовых котлов должны знать, как устроено данное оборудование, чтобы уметь выполнять простой ремонт без вызова мастера по каждому поводу. Подробно об устройстве газового котла смотрите на этой странице.
Автоматика для управления котлом
Модернизированная система управления существенно облегчает использование домашнего и промышленного котельного оборудования.
Основными составляющими блока управления являются:
- нагнетающий вентилятор;
- контроллер;
- регулятор тяги;
- циркуляционный насос.
Дополнительно они могут оснащаться датчиками уровня воды, датчиками уровня и расхода топлива, регистраторами давления, предохранительными клапанами, а также сигнализацией, которая срабатывает, если температурный уровень превышает допустимый диапазон установки (25-50 ⁰С).
Принцип работы
Работает автоматика для нагревательных приборов просто и понятно:
- управляет поддувом;
- контролирует весь объем воздуха, поступающего в камеру сгорания;
- обеспечивает оптимальный режим сгорания.
В отличие от прежних моделей, в новых усовершенствованных устройствах нет необходимости постоянно открывать вручную дверцу зольника и следить за температурой по термометру. Для этого у них имеется регулятор тяги. Это очень удобный энергозависимый прибор, который автоматически распахивает и закрывает дверцу в соответствии с температурой воды, содержащейся в емкости.
Вместо стандартной заслонки установлен вентилятор, управляемый контроллером. Его задача ― подавать в камеру сгорания ровно столько воздуха, сколько необходимо для полноценной и безопасной работы.
Предпочтительный уровень температуры теплоносителя настраивается с помощью контроллера с экраном и дистанционным пультом управления. Для того чтобы температурный режим поддерживался в соответствии с климатическими условиями улицы, можно установить дополнительную систему с выносными регуляторами и датчиками наружного воздуха.
Розжиг топлива производится с помощью электрического элемента накаливания, встроенного в горелку.
Преимущества и недостатки использования
Незначительное количество датчиков и инструментов держит под контролем процесс сгорания любого вида твердого топлива, поддерживает заданную владельцем температуру и гарантирует безопасность.
Самые главные полезные функции и плюсы использования автоматики включают в себя:
- рациональный и экономичный расход твердого топлива;
- повышение показателей работоспособности отопительного прибора;
- обеспечение безопасной эксплуатации;
- отсутствие необходимости в самостоятельном контроле горения;
- увеличение интервала между плановыми техническими проверками устройства;
- постоянное поддержание температуры в отопительной системы на требуемом уровне;
- автоматическое отключение котла в случае выхода любой его детали из строя ― по сигналу датчиков.
Минусы у автоматизированных систем также имеются, но они минимальны:
- высокая цена, которая напрямую зависит от количества доступных опций;
- потребность в покупке источника бесперебойного питания, обусловленная энергетической зависимостью блока управления.
Типы твердотопливных котлов
Сегодня отечественному потребителю доступно большое количество моделей твердотопливных котлов для отопления, которые можно представить в виде следующих групп:
- классические твердотопливные котлы;
- твердотопливные котлы длительного горения;
- пеллетные твердотопливные котлы.
Традиционные твердотопливные котлы
Правда, нужно признать, что эти устройства приобрели несколько иной внешний вид и конструкционное исполнение. Но все эти изменения пошли только на пользу, так как у современных образцов повысилось КПД и удобство эксплуатации.
В конструкции твердотопливного котла можно выделить следующие ключевые элементы:
- Камера сгорания;
- Теплообменник;
- Автоматика, которая гарантирует сохранение температуры на требуемом уровне.
Для изготовления таких элементов, как камера сгорания и теплообменник используют сталь или чугун. При этом ни один из этих материалов не имеет серьезных преимуществ на фоне другого. Обязательно нужно учитывать дополнительные параметры: качество материала, толщину, конструкцию.
Использование стали в качестве материала для камеры сгорания и теплообменника позволяет заметно облегчить изделие. В то же время такие устройства лучше справляются с механическими воздействиями во время перевозки и погрузки-разгрузки, в чем они превосходят чугунные аналоги. Но имеются у стального теплообменника и минусы. Если его эксплуатация будет проходить с нарушением правил, то это приведет к его коррозии. Естественно, эта ситуация возникает редко, так как нет ничего сложного в том, чтобы не допускать падения температуры в котле ниже температуры «точки росы».
Среди преимуществ, которыми обладает чугун, следует упомянуть о высокой долговечности. По данному параметру он превосходит сталь в два раза. К тому же этот материал лучше защищен от коррозии.
Твердотопливные котлы длительного горения
способность подолгу сохранять тепло Наибольшее распространение получили следующие типы котлов:
- пиролизные (газогенераторные) котлы;
- котлы с горением «сверху-вниз».
Довольно часто применяются устройства, в которых используется система пиролизного сжигания. Их отличает то, что тепло образуется за счет сжигания газа, образуемого во время горения твердого топлива. Подобный режим работы позволяет топливу гореть дольше обычного и обеспечивает более эффективную работу установки.
Эти устройства можно использовать для отопления небольших производственных объектов, коттеджей и загородных домов. В то же время они с успехом могут выполнять функции самостоятельного источника тепла и использоваться совместно с другими отопительными приборами.
Котлы на пеллетах
Если частный дом не имеет подключения к газовой магистрали, то среди возможных вариантов решения проблемы обогрева его владелец может выбрать пеллетные котлы. Эти устройства предпочтительнее электрических и жидкотопливных аппаратов, поскольку стоимость пеллетов ниже солярки и электроэнергии и в то же время их можно без труда перевести в автоматический режим работы. Эксплуатация этих устройств менее затратная, так как одной закладки топлива хватает на 5-7 дней работы такого котла.
Конструкция этих аппаратов представлена следующими компонентами: котел, бункер и система подачи пеллет из бункера в котел.
Котлы, работающие на пеллетах, могут быть классифицированы на два типа:
- со встроенными горелками (ретортные пеллетные горелки вулканного типа);
- с навесными (наддувными) горелками.
Пеллетные котлы с навесной (наддувной) горелкой отличаются тем, что при необходимости их можно перевести на другой тип топлива. Для этого достаточно только поменять горелку.
Котлы, в которых используется ретортная встроенная горелка, лишены такой возможности, что ограничивает их применение.
Остановимся подробнее на процессе подачи пеллетов из бункера в котел. Для загрузки топлива в бункер горелки используется внешний шнек. Работу последнего контролирует фотосенсор, которым оборудована горелка. Именно он следит за тем, насколько бункер загружен гранулами. Когда в бункере не остается свободного места для топлива, происходит отключение внешнего шнека. На этом этапе в работу вступает внутренний шнек, при помощи которого гранулы поступают на решетку горения. Здесь расположена электрическая спираль, которая воспламеняет гранулы. Доступ воздуха в зону горения обеспечивает вентилятор.
Дополнительные рекомендации
Чтобы теплообменник не зарастал накипью, заливайте в систему только обессоленную воду. Часто домовладельцы собирают для этих целей дождевую.
По той же причине лучше приобретать модель с охлаждающим змеевиком в теплообменнике, а не с подачей воды непосредственно в бак.
Не курите в доме с системой из алюминиевых радиаторов. В них образуется водород, выходящий наружу через воздухоотводчик или кран Маевского.
В период простоя отопителя теплообмен в его баке приобретает обратное направление. Чтобы вода в контуре остывала медленнее, рекомендуется сделать байпас с кранами, по которому среда будет двигаться в обход прибора.
Принцип работы пеллетных котлов
Главной особенностью таких котлов является топливо, на котором они работают.
Пеллеты — это гранулы из прессованных опилок, которые хранятся в специальном бункере и подаются в горелку при помощи металлического шнека. Смотрим вниз на картинки:
Внутреннее устройство пеллетного котла
Из рисунка видно, что сжигание пеллет происходит в малом объеме горелки, а тепло снимается дальше в дымоотводящих трубах.
Дым на выходе из пеллетного котла будет иметь температуру не больше 200 градусов Цельсия.
Это может стать причиной появления конденсата в дымоходе со всеми вытекающими последствиями.
Горением топлива в пеллетных котлах управляет автоматика, главным элементом которой можно считать вентилятор принудительной подачи воздуха или дымосос (в зависимости от модели).
Наличие электроники означает, что вам нужно будет оборудовать котел источником бесперебойного питания.
То же самое касается и циркуляционных насосов. В случае остановки циркуляции котел может получить повреждения
Длительность работы котла на одной загрузке здесь зависит от режима работы котла и объема бункера.
Обычно, бункер выбирают так, чтобы не подходить к котлу несколько дней.
Сами пеллеты тоже могут быть изготовлены из разного сырья и давать разное количество тепла при сжигании.
Их главным недостатком для России и СНГ является их экзотичность. Нельзя гарантировать, что их можно будет купить всегда, как каменный уголь или дрова.
Предлагаю вам посмотреть видео, посвященное пеллетным котлам:
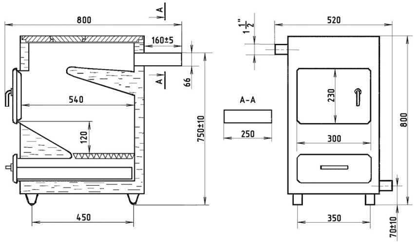
Как сделать своими руками котел твердотопливный длительного горения: чертежи и схемы конструкций
Перед тем, как начать изготовление котла, необходимо определиться с его конструкцией. Ее выбор зависит от назначения агрегата. Если он предназначен для отопления небольшого хозяйственного помещения, гаража или дачного домика, то делать в нем водяной контур не обязательно. Обогрев такого помещения будет происходить непосредственно от поверхности котла, путем конвекции воздушных масс в помещении, как от печи. Для большей эффективности можно устроить принудительное обдувание агрегата воздухом при помощи вентилятора. При наличии системы жидкостного отопления в помещении, необходимо предусмотреть устройство в котле контура в виде змеевика из трубы или другой аналогичной конструкции.
Котел твердотопливный: фото, особенности, устройство, схема обвязки: (прочитать подробнее)
Схема подключения твердотопливного котла к системе отопления.
Выбор варианта зависит и от типа твердого топлива, которое нужно будет использовать. Для отопления обычными дровами требуется увеличенный объем топки, а для применения мелких топливных гранул можно устроить специальную емкость, из которой гранулированное топливо подается в котел автоматически. Для изготовления котла твердотопливного длительного горения своими руками, чертеж можно взять и универсальный. Он подойдет для любого вида используемого твердого топлива.Схема подключения твердотопливного котла к системе отопления
Чертеж твердотопливного котла длительного горения мощностью 25/30/40 кВт.
Расскажем пошагово, каким образом и из каких деталей можно сделать котел отопления на твердом топливе длительного горения по предложенной схеме:
- подготовим место, где будет установлен будущий агрегат. Основание, на котором он будет стоять, должно быть ровным, прочным, жестким и огнеупорным. Лучше всего для этого подойдет бетонный фундамент или толстая чугунная либо стальная плита. Стены нужно обить тоже огнеупорным материалом, если они деревянные;
- собираем весь необходимый материал и инструменты: из которых нам понадобиться аппарат для электродуговой сварки, болгарка и рулетка. Из материалов: листовая 4-мм сталь; 300 – мм стальная труба со стенками 3 мм, а также другие трубы 60 и 100 мм диаметром;
Строение и принцип работы твердотопливного котла.
- для того, чтобы изготовить котел на твердом топливе длительного горения, нужно из большой 300 – мм трубы вырезать кусок длиной 1 м. Можно и немного меньше, если в этом есть необходимость;
- из стального листа вырезаем дно по диаметру трубы и привариваем его, снабдив ножками из швеллера длиной до 10 см;
- распределитель воздуха выполняем в виде круга из листа стали с диаметром на 20 мм меньшим, чем труба. В нижнюю часть круга приваривается крыльчатка из уголка с размером полки 50 мм. Для этого можно использовать и швеллер аналогичного размера;
- сверху в середину распределителя привариваем 60 – мм трубу, которая должна быть выше котла. В середине диска распределителя прорезаем отверстие по трубе, так, чтобы был сквозной туннель. Он нужен для подачи воздуха. В верхней части трубы врезается заслонка, которая позволит осуществлять регулировку подачи воздуха;
Схематическое изображение устройства котла, работающего на твердом топливе.
- в самой нижней части котла изготавливаем небольшую дверку, снабженную задвижкой и петлями, ведущую в зольник для удобства удаления золы. Сверху в котле прорезаем отверстие для дымохода и привариваем в это место 100 – мм трубу. Вначале она идет под небольшим углом вбок и вверх на 40 см, а потом строго вертикально вверх. Проход дымохода через перекрытие помещения должен быть защищен по правилам противопожарной безопасности;
- заканчиваем сооружение котла отопления на твердом топливе длительного горения изготовлением верхней крышки. В ее центре должно быть отверстие для трубы распределителя потока воздуха. Прилегание к стенкам котла должно быть очень плотным, исключающим попадание воздуха.
Чертеж с размерами для создания твердотопливного котла своими руками.
На заметку! Чтобы разжечь, изготовленный своими руками, котел твердотопливный длительного горения, чертеж которого был представлен выше, необходимо: снять крышку и поднять регулятор, заполнить котел топливом доверху и облить его горючей жидкостью, все поставить на место и бросить горящую лучину в трубу регулятора. Когда топливо разгорится, снизить поток воздуха до минимума, чтобы оно начало только тлеть. После этого произойдет возгорание пиролизного газа и котел запустится.
Котел длительного горения — вид в разрезе.
Виды твердотопливных котлов для отопления частного дома
Различия в твердотопливных котлах связаны с:
- Технологией подачи ресурсов.
- Существующей системой сгорания.
Пеллетные
Автоматическая загрузка производится из бункера. В зависимости от его объёма, одной закладки хватает на срок от недели до месяца. Так как твердотопливный котел работает самостоятельно, возможно настроить режимы отопления в зависимости от времени суток и дня недели.

Фото 1. Твердотопливный пеллетный котел. В правой части прибора находится бункер для загрузки пеллет.
Автоматические модели твердотопливных котлов работают только на пеллетах. Это древесные гранулы, которые получают прессованием опилок, стружек, коры, лузги и других подобных древесных отходов. Пеллеты не сгорают, а долго тлеют, выделяя значительное количество тепла. Поэтому они дают довольно высокий КПД, до 90—95%.
Важно! Из-за автоматики потребуется постоянный источник электричества. На случай перебоев желательно приобрести ИБП
С ручной загрузкой
Остальные виды твердотопливных котлов загружаются только вручную. Источником тепла служат:
- дрова;
- уголь;
- штыб;
- кокс;
- брикеты;
- торф.

Срок работы одной закладки зависит от объёма топливной камеры и использующихся технологий горения. Для удобства дверцу котла располагают под наклоном. Это облегчает загрузку и дальнейшее обслуживание устройства.
Недостаток подобных моделей твердотопливных котлов — невозможность автоматической работы. Для поддержания процесса требуются периодические усилия человека.
Зато зависимость от электричества снижается. К тому же используются разные виды ресурсов и легче подобрать наиболее доступные в данной местности.
Справка. Существуют модели твердотопливных котлов с автоматической и механической регулировкой температуры. В последнем случае применяется механический регулятор тяги (заслонка). Он не зависит от наличия электричества.
Твердотопливные котлы с ручной загрузкой подразделяется на типы в зависимости от конструктивных особенностей. Выделяют такие технологии:
- классическая;
- пиролизная;
- длительного горения.
Классические

В таких твердотопливных котлах не применяются технологии, увеличивающие длительность и эффективность горения. Поэтому древесина в них сгорает быстро, за несколько часов.
Эффективность таких котлов невысока, так как значительная часть тепла улетучивается через дымоход.
К достоинствам подобных моделей твердотопливных котлов относится низкая стоимость, связанная с тем, что внутренняя конструкция простая.
Пиролизные
Как видно из названия, используется технология пиролизного сгорания. При первичном сгорании с недостатком кислорода образуются пиролизные газы, которые также способны гореть, выделяя значительное количество тепла.
Конструкция усложняется по сравнению с классическим вариантом твердотопливыных котлов. Над основной камерой сгорания располагают дополнительную, где собираются и сгорают газы.
Благодаря этому увеличиваются:
- эффективность (до 85—95% в зависимости от типа сырья);
- длительность работы одной закладки.
К другим плюсам подобных твердотопливных котлов относят точную регулировку температуры и меньшее количество сажи и шлаков. Недостатками котлов считаются:
- Высокая цена (окупается в процессе эксплуатации).
- Необходимость использования только сухого топлива (иначе процесс пиролиза не начнётся).

Фото 2. Внутреннее устройство твердотопливного пиролизного котла и принципы его работы на разных этапах.
Длительного горения
В твердотопливных котлах данного типа используется другая технология. Дрова горят не снизу вверх, как при классическом варианте, а сверху вниз. Горение становится медленным и эффективным. Поэтому закладки дров в котел хватает до суток и более, а угля — до недели. Как и пиролизные, данные твердотопливные котлы работают на всех типах древесных ресурсов.


















































